PAVLICA statika stavieb Fotogaléria referencií:  vzad vpred Slovenská verzia   English version

Projekty pre realizáciu dopĺňajú a prehlbujú projektovú dokumentáciu na stavebné povolenie. Slúžia pre stavebnú firmu ako podklad pre uskutočnenie stavby.

Realizačný projekt statiky vypracovaný v našej kancelárii obsahuje:

Podrobnú technickú správu s popisom zakladania, vodorovných a zvislých nosných prvkov, krovu, uvažovaných zaťažení, spôsobu výpočtu, použitých materiálov, podkladov a pokynov pre realizáciu.
Pôdorysy jednotlivých podlaží (výkresy tvaru). V prípade železobetónových alebo pilótových základov výkres základov s vyznačením polohy železobetónového prvku.
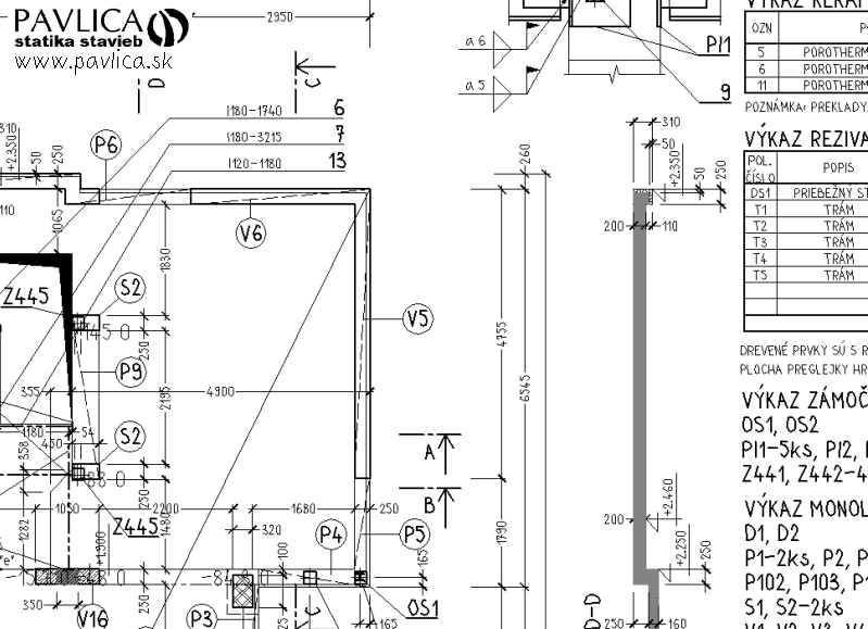
V prípade železobetónových alebo pilótových základov výkres tvaru základov s vyznačením polohy žb prvku.
Pre šikmé vence sú vykreslené bočné pohľady na vence.
Výkresy zámočníckych výrobkov vykázaných vo výkrese tvaru: oceľové stĺpy, oceľové platničky, posuvné uloženia, rámy podkrovia s výkazom ocele pre príslušný prvok.
Výkresy výstuže monolitických betónových prvkov: stropných dosiek, vencov, prekladov, stĺpov... Výstuž betónových stropov (ľudovo betónových platní) navrhujeme podľa požiadavky objednávateľa z KARI sietí alebo z prútovej betonárskej ocele (ľudovo železo roxor).
Výkres strihania sietí s výkazom sietí pre celý objekt.
Výkaz betonárskej ocele (ľudovo roxorov) pre celý objekt.
Výkaz valcovanej ocele (profily tvaru I, U, L, plechy ...) pre celý objekt podľa veľkosti profilu.
Výkaz valcovanej ocele pre celý objekt podľa dielcov.
Výkaz valcovanej ocele pre celý objekt podľa cenového normatívu.

Ponúkame tiež vypracovanie (bežne nie je súčasťou ceny za statiku):

Výkres krovu s podrobným výkazom reziva a rezmi.
Schématické priestorové pohľady na hlavné nosné prvky krovu.

Z projektu na realizáciu je možné vypracovať podrobný rozpočet stavby a presný výkaz a výmer stavebných prác a materiálov.

Celkové výkazy (spolu pre celý stavebný objekt) valcovanej ocele, betonárskej výstuže a zváraných sietí Vám umožnia objednávať, dovážať a pripravovať materiály pre celú stavbu naraz.

Realizačné výkresy umožňujú investorovi kontrolovať množstvo a správnosť prevedených prác a vyhnúť sa navyše prácam a navýšeniu ceny stavby.

Dodávateľ môže skrátiť dobu výstavby nakoľko nie je zdržiavaný nejasnosťami o potrebnom množstve materiálov a výrobkov, nemusí čakať na ukončenie niektorej stavebnej etapy a až potom upresňovať spôsob prevedenia súvisiacich konštrukcií. Vyhne sa i prevádzaniu dodatočných zmien na stavbe (neraz za cenu búrania už prevedených konštrukcií), čo býva príčinou konfliktov s investorom nakoľko tieto práce je potrebné zaplatiť. V neposlednom rade sa zbaví i zodpovednosti za návrh konštrukcií prevedených bez projektu.



PAVLICA statika stavieb

aktualizované: 22.03.2010
Copyright © 2010 by Stanislav Pavlica